Design
2D Design
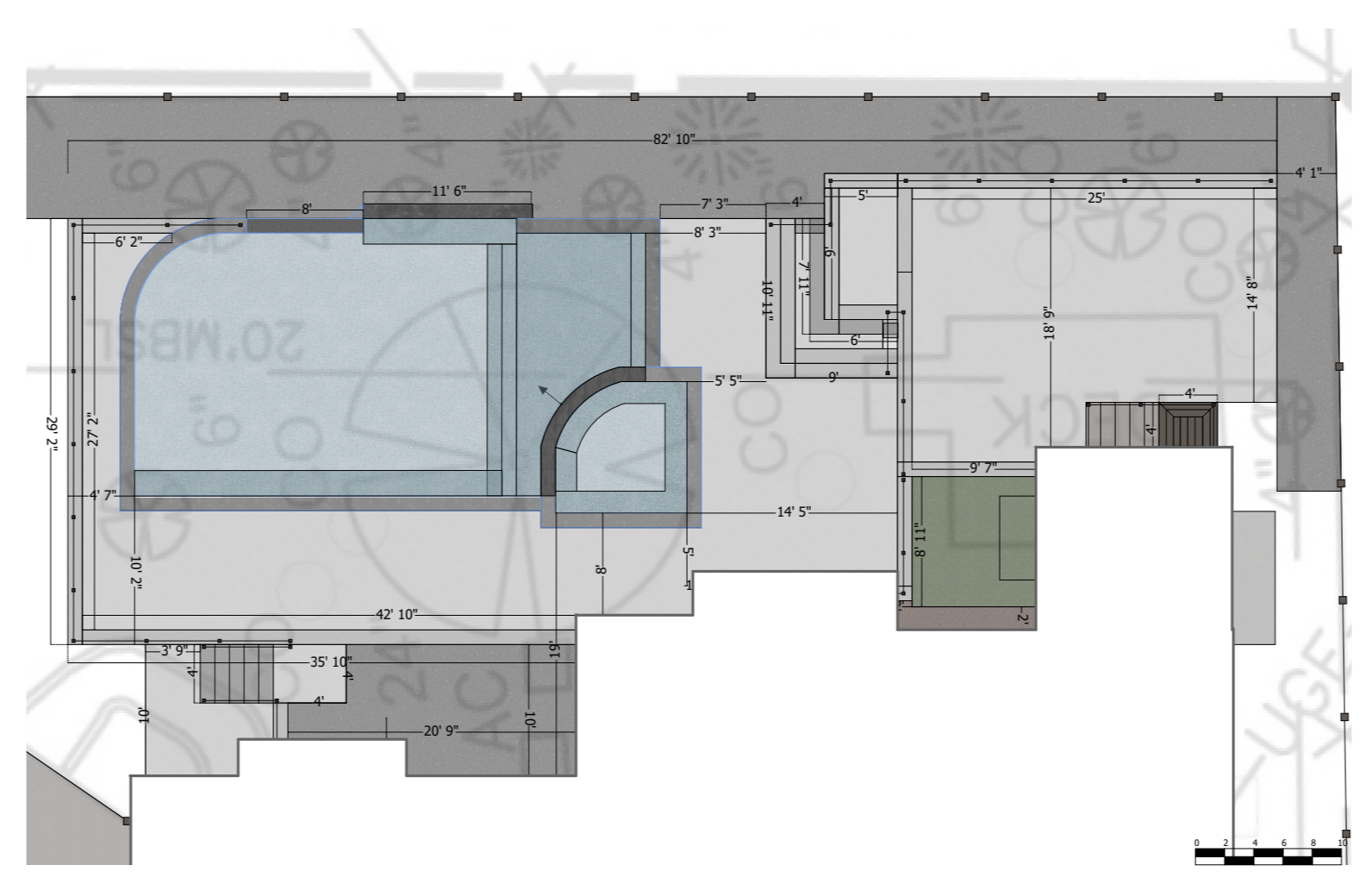
Our 2D Design Packages play a crucial role in designing outdoor living spaces. Through precise drafting, we can ensure a superior end result and avoid unexpected issues.
Included in Our 2D Design Packages:
Overview Sheet
Hardscape Sheet
Landscape Sheet
Lighting Sheet
Dimension Sheet
Material Schedules
3D Design
If you are someone who appreciates visuals, our 3D Design Packages are tailor-made for you. Visualizing every aspect of your new space can enhance the entire process and provide you with the confidence that what you see is what you will receive.
Included in Our 3D Design Packages:
10 Daytime Renderings
10 Nighttime Renderings

